Call on
+1(310)-739-6896
Еmail
Easylevelconstructioninc@gmail.com
Schedule A Call
Schedule A Call
Main /
Projects /
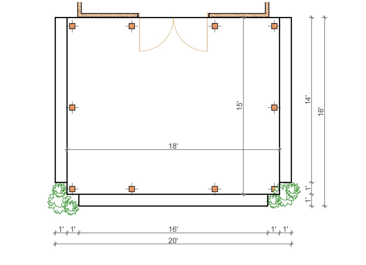
Deck Framing & Finishing with Pergola – 600 Sq Ft
Deck Framing & Finishing with Pergola – 600 Sq Ft
Let’s talk!
Leave your details, and our expert will get back to you shortly
Name
Phone
Get Your Free Estimate